Price £1,700,000 - New Instruction


A luxury 3 bedroom penthouse apartment in the iconic Wardian development, located in the heart of Canary Wharf.
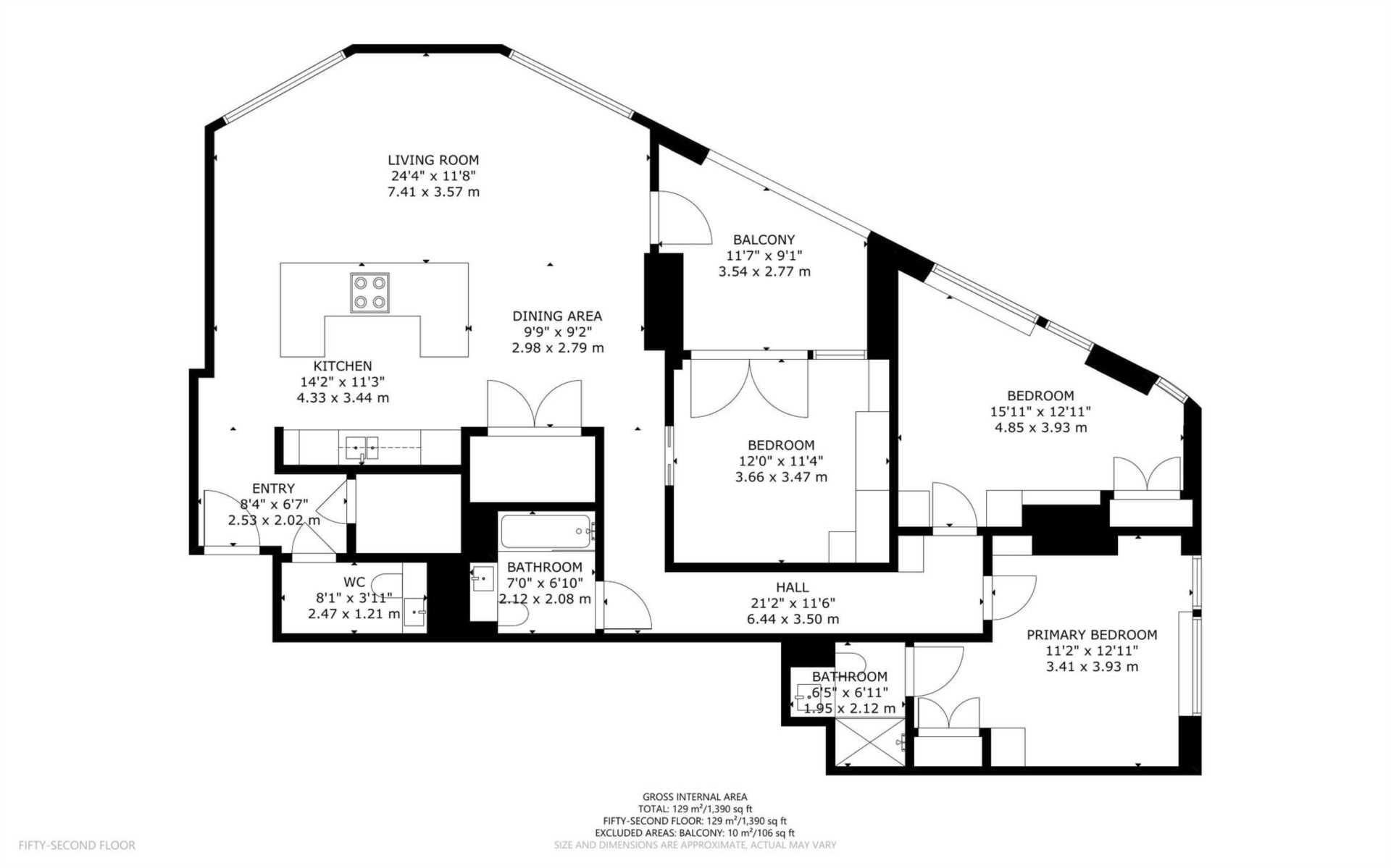
Situated on the top floor, this exceptional residence offers panoramic views across London and the River Thames. The apartment benefits from an expansive open-plan living space, three bedrooms, two bathrooms, and a private balcony garden enclosed by frameless clear glass balustrades.

Finished to a high standard throughout, the property features a contemporary kitchen with sleek marble worktops and integrated appliances, and designer-curated furniture included in the sale. The bathrooms are stylishly appointed with luxurious marble wall tiles, offering a refined and tranquil atmosphere.

Wardian residents enjoy access to a range of world-class amenities including a rooftop , state-of-the-art gym, and lush landscaped gardens integrated throughout the building.
The development is known for its unique botanical architecture, with glass showcases housing tropical plants and trees across the communal areas.

Ideally located for transport links, the apartment is within easy reach of Heron Quays (DLR), Canary Wharf (Elizabeth, Jubilee, DLR), and South Quay (DLR) stations, as well as Thames Clipper boat services. London City Airport is also easily accessible for European travel.

Key Features:

3 bedroom, 2 bathroom penthouse apartment

Spectacular views across London and the River Thames

Designer kitchen with marble finishes

Private balcony garden

Curated designer furniture pack included

Sky Lounge, gym, 25m heated pool, and residents' amenities

Excellent transport links including Jubilee Line, DLR & Crossrail

Tenure: Leasehold
EPC Rating: B
For more details or to arrange a viewing, please contact us directly.




Nearest stations

Heron Quays station
DLR line, Zone: 2

Canary Wharf station
Elizabeth Jubilee DLR lines, Zone: 2

South Quay station
DLR line, Zone: 2



Council Tax
Tower Hamlets, Band G

Notice
Please note we have not tested any apparatus, fixtures, fittings, or services. Interested parties must undertake their own investigation into the working order of these items. All measurements are approximate and photographs provided for guidance only.


/// share.submit.cats is the what3words address for the best entrance. what3words has given every 3 metre square in the world a unique combination of 3 random words.

Floor Plan
EER Chart

The Energy-Efficiency Rating is a measure of a home's overall efficiency. The higher the rating, the more energy-efficient the home is, and the lower the fuel bills are likely to be.

Utility Supply Type
Electric Mains Supply
Gas None
Water Mains Supply
Sewerage None
Broadband None
Telephone None

Other Items Description
Heating Under Floor Heating
Garden/Outside Space Yes
Parking Yes
Garage No

Broadband Coverage Highest Available Download Speed Highest Available Upload Speed
Standard 7 Mbps 0.8 Mbps
Superfast 80 Mbps 20 Mbps
Ultrafast 5000 Mbps 5000 Mbps

Mobile Coverage Indoor Voice Indoor Data Outdoor Voice Outdoor Data
EE Enhanced Enhanced Enhanced Enhanced
Three Likely Likely Enhanced Enhanced
O2 Enhanced Enhanced Enhanced Enhanced
Vodafone Enhanced Enhanced Enhanced Enhanced

Broadband and Mobile coverage information supplied by Ofcom.


marker icon