Price £1,400,000 - New Instruction


  • Contemporary Townhouse Design
  • Expansive Living Area
  • Five Well-Proportioned Bedrooms
  • Private Garden & Parking

A sophisticated semi-detached townhouse offering contemporary vertical living in the heart of West Putney. This modern residence is part of an exclusive residential pocket, providing a sleek architectural alternative to the area's traditional period housing. Arranged over multiple floors, the property is designed to maximize lateral space and natural light, offering a high degree of privacy and a layout perfectly suited for modern families.

The interior flow is exceptionally versatile, with the upper floors providing quiet sanctuary for the five bedrooms, while the primary living and entertaining spaces occupy the lower levels. The property benefits from a seamless connection to its private outdoor space, creating an ideal environment for indoor-outdoor living.

Key Features
Contemporary Townhouse Design: A modern, multi-level home offering a distinct and stylish presence on a premier road.

Expansive Living Area: Approximately 1,711 sq. ft. (159 sqm) of internal space with a flexible floor plan.

Four Well-Proportioned Bedrooms: Includes a generous principal suite and ample space for a home office or guest rooms.

Private Garden & Parking: Features a secluded rear garden and parking space.

Situated on the prestigious Howards Lane, the property enjoys a quiet, leafy setting while remaining moments from Putney's vibrant hub.

NEAREST STATIONS
Barnes station
Zone 3



Council Tax
Wandsworth Borough, Band G

Notice
Please note we have not tested any apparatus, fixtures, fittings, or services. Interested parties must undertake their own investigation into the working order of these items. All measurements are approximate and photographs provided for guidance only.

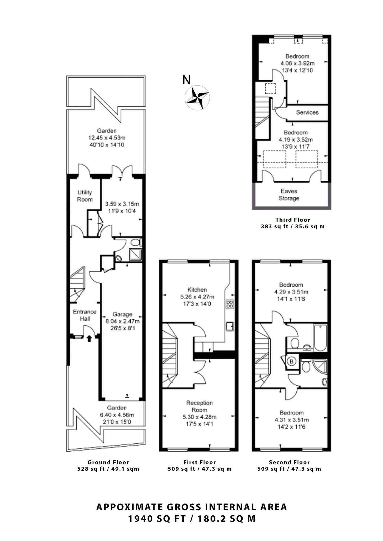
Floor Plan
EER Chart

The Energy-Efficiency Rating is a measure of a home's overall efficiency. The higher the rating, the more energy-efficient the home is, and the lower the fuel bills are likely to be.

Utility Supply Type
Electric Mains Supply
Gas None
Water Mains Supply
Sewerage None
Broadband None
Telephone None

Other Items Description
Heating Gas Central Heating
Garden/Outside Space No
Parking No
Garage Yes

Broadband Coverage Highest Available Download Speed Highest Available Upload Speed
Standard 15 Mbps 1 Mbps
Superfast 92 Mbps 20 Mbps
Ultrafast Not Available Not Available

Mobile Coverage Indoor Voice Indoor Data Outdoor Voice Outdoor Data
EE Enhanced Enhanced Enhanced Enhanced
Three Likely Likely Enhanced Enhanced
O2 Enhanced Likely Enhanced Enhanced
Vodafone Likely Likely Enhanced Enhanced

Broadband and Mobile coverage information supplied by Ofcom.


marker icon